1132 Limberlost Road, Huntsville, ON P1H 2J6
Toggle Navigation
Images
Videos
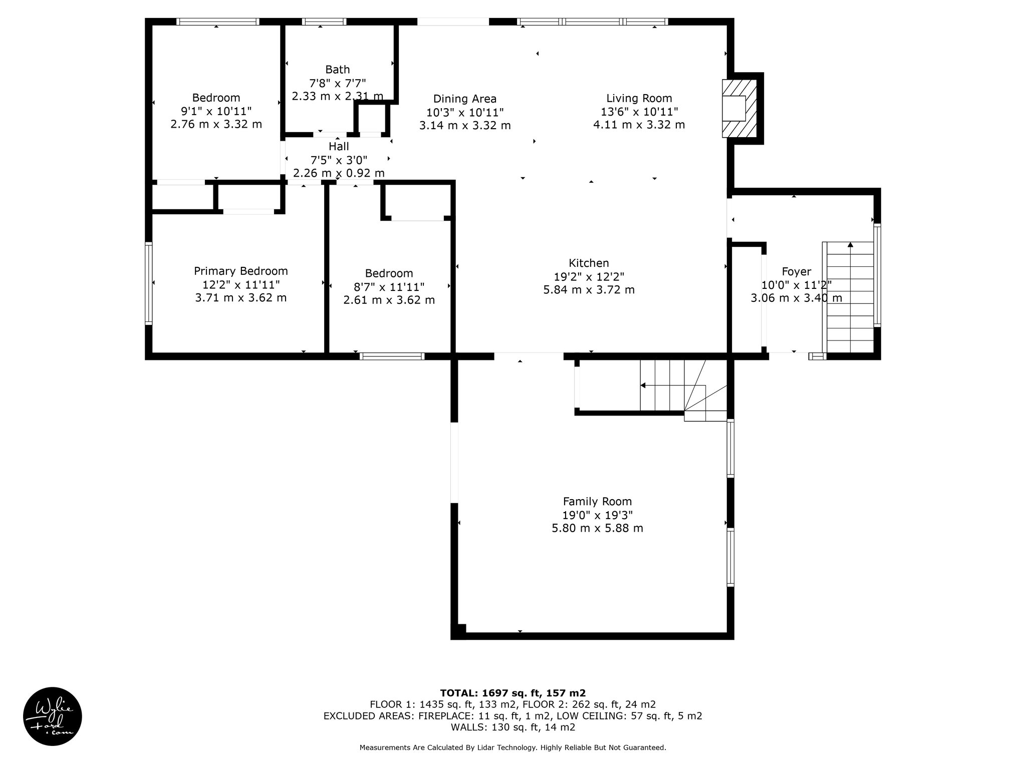
Floor Plans
Map
Previous Photo
Next Photo
Images
Images
New Outdoor
Slideshow
Photo Grid
Hide
Previous
Next
Show more
Videos
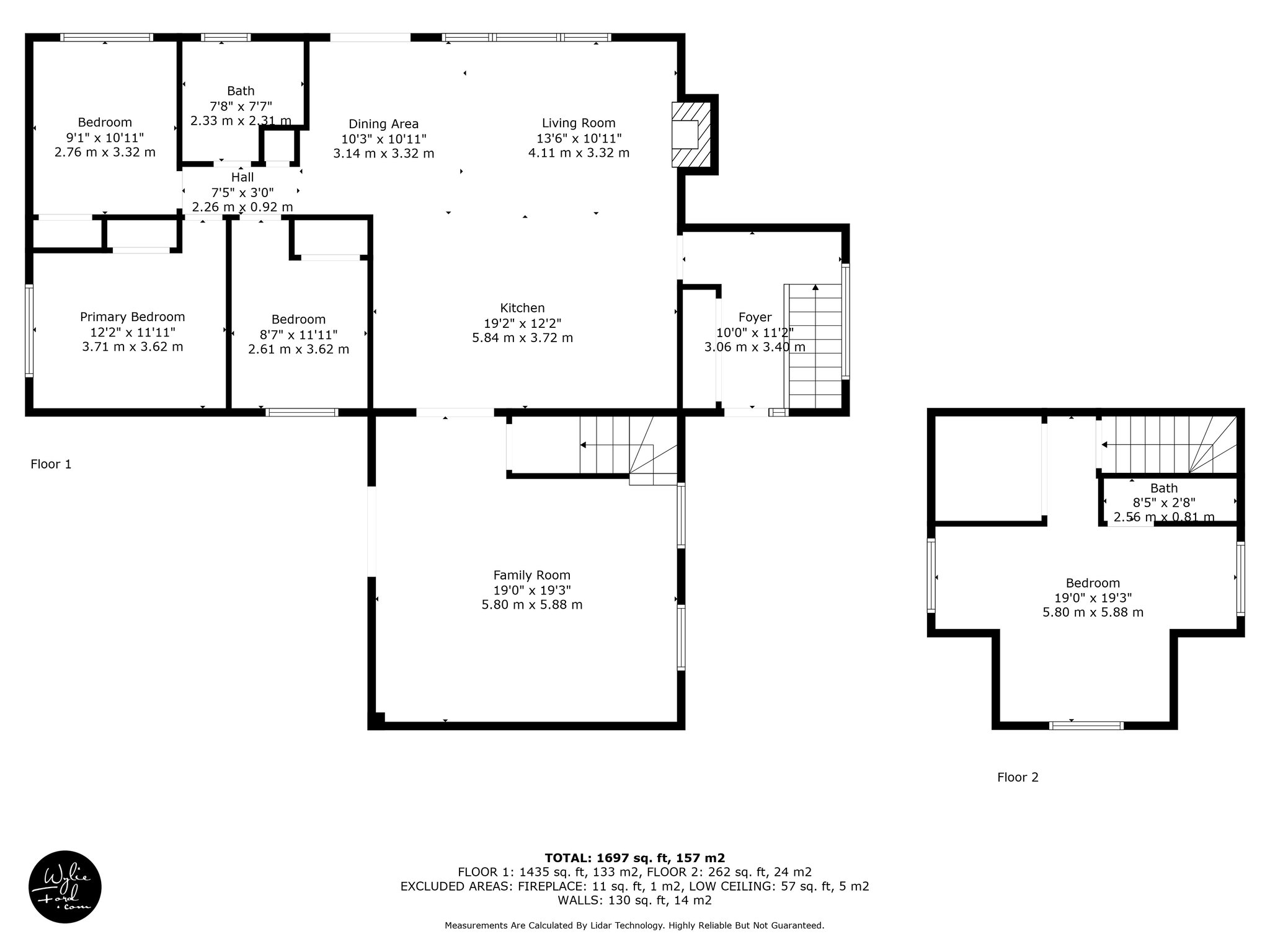
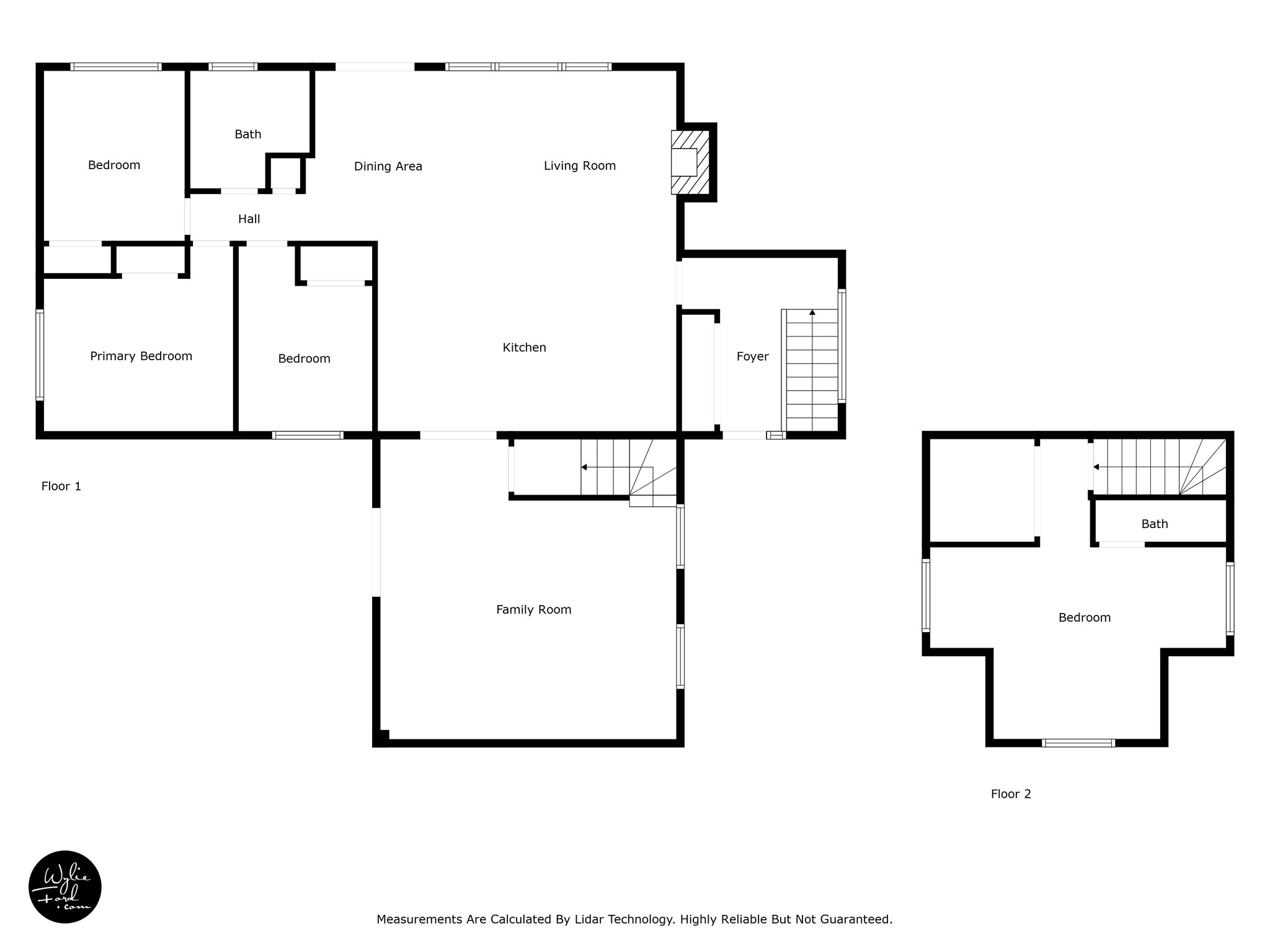
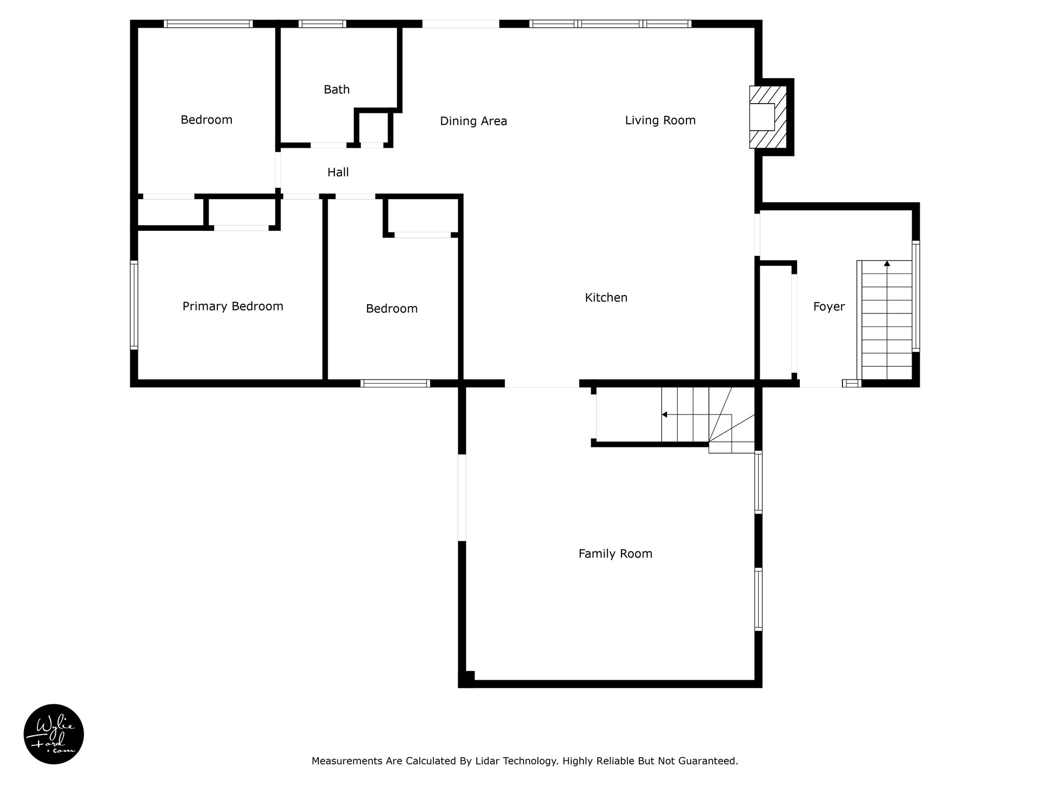
Floor Plans
Slideshow
Photo Grid
Hide
Previous
Next