7 Porcupine Circle, Barrie, ON L4N 7Z6
Toggle Navigation
Images
Videos
Floor Plans
Map
Previous Photo
Next Photo
Images
Slideshow
Photo Grid
Hide
Previous
Next
Show more
Videos
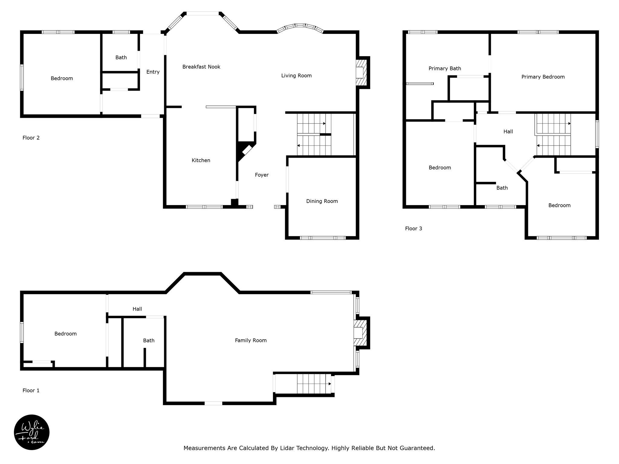
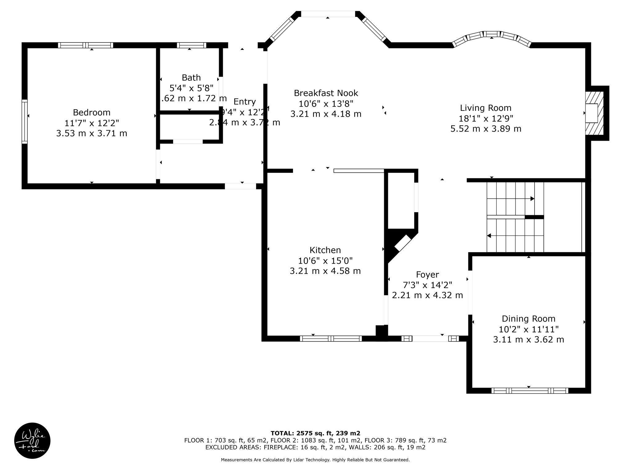
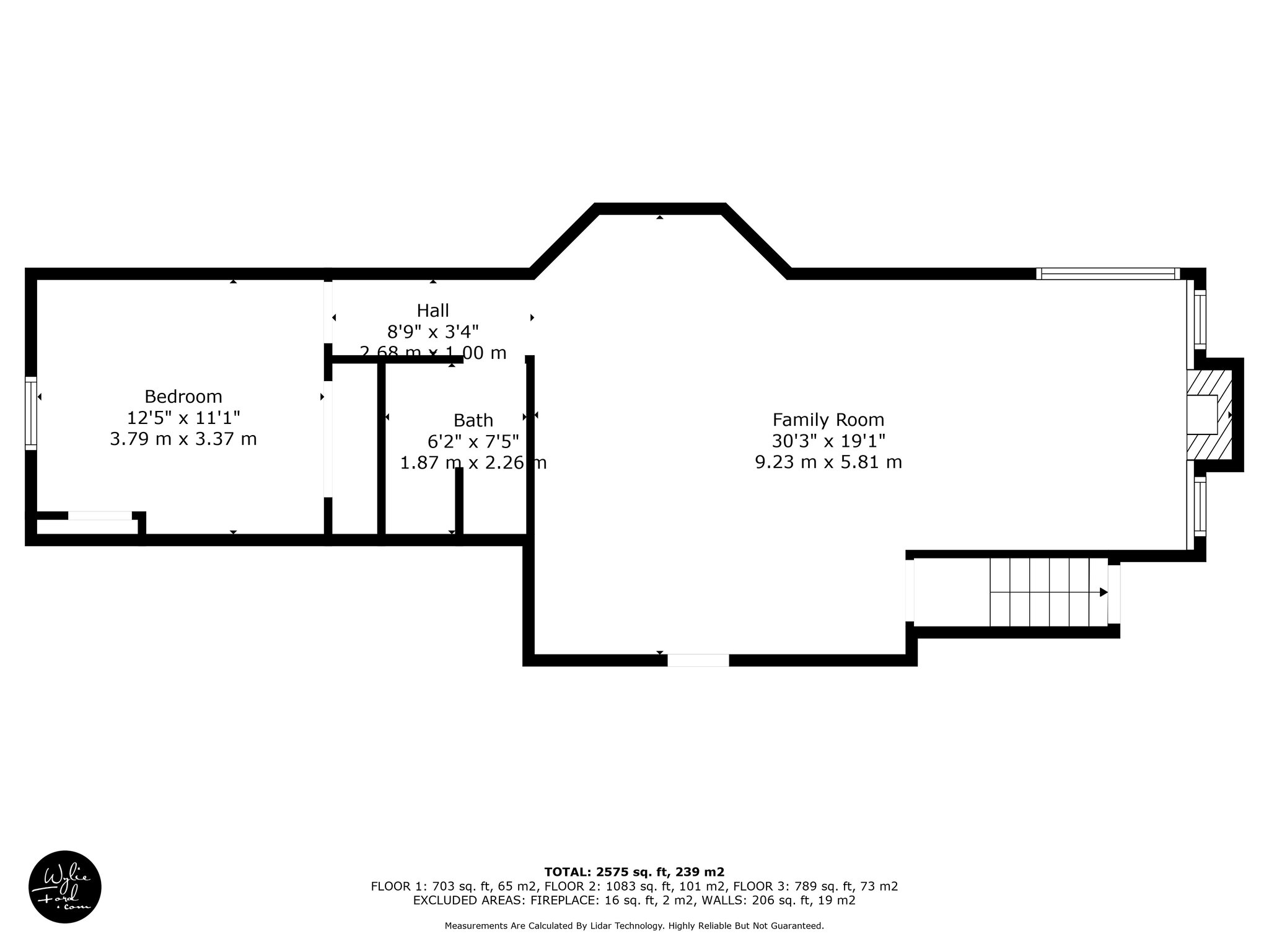
Floor Plans
Slideshow
Photo Grid
Hide
Previous
Next