1352 Dignan Road, Haliburton, ON K0M 1S0
Toggle Navigation
Images
Videos
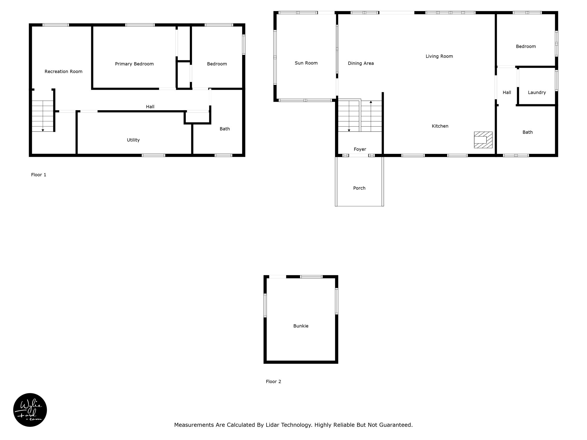
Floor Plans
Map
Previous Photo
Next Photo
Images
Slideshow
Photo Grid
Hide
Previous
Next
Show more
Videos
Floor Plans
Slideshow
Photo Grid
Hide
Previous
Next