Details

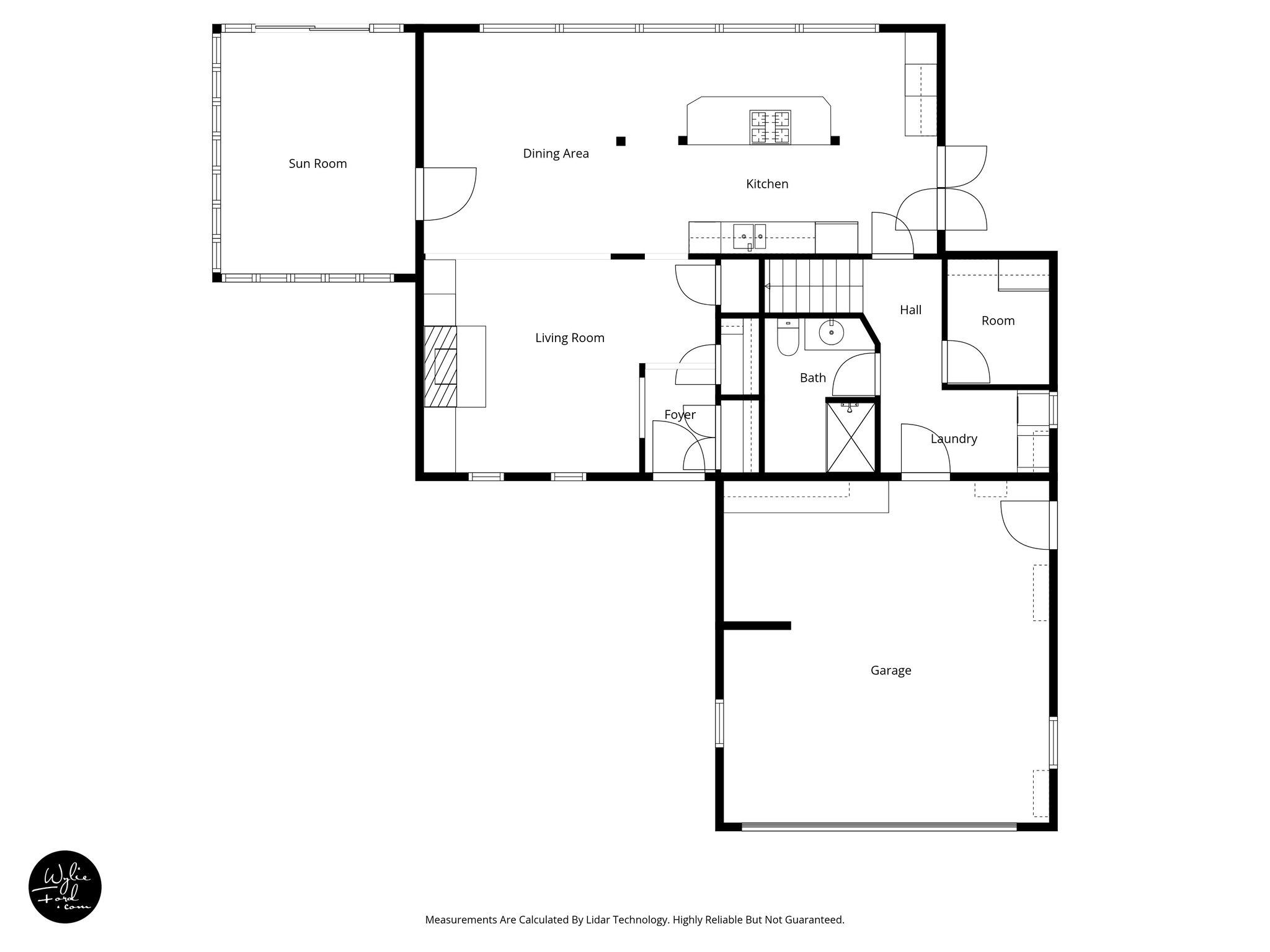
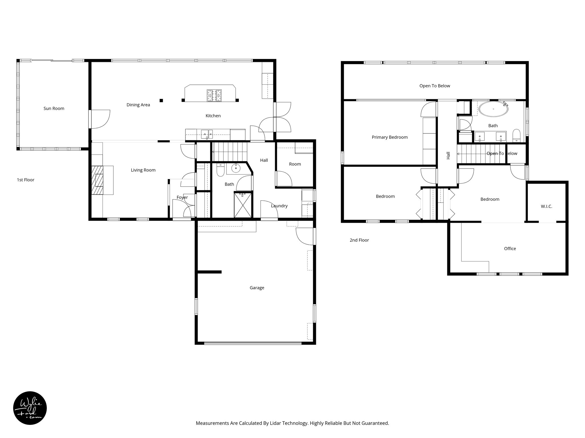
Welcome to this uniquely designed custom built 3 bed, 2 bath home set on a full-size town lot in the heart of downtown Collingwood. Offering space, character, and exceptional outdoor features, this property is perfect for families or buyers seeking in-town convenience with room to spread out.The main floor showcases a warm and inviting living/dining area with laminate flooring and a stunning tongue-and-groove ceiling that adds character and charm. The spacious kitchen is a true highlight, featuring wall-to-wall windows that flood the space with natural light, skylights in the kitchen and dining area, rich wood cabinetry, a gas cooktop, built-in oven, Bosch dishwasher, and bar fridge-ideal for both everyday living and entertaining.Upstairs, all three bedrooms feature hardwood flooring, creating a cohesive and timeless feel. Two full bathrooms provide added convenience for family and guests. Comfort is ensured year-round with gas hot water radiator heating and two wall-mounted A/C units in the bedrooms. From your main floor sunroom you can view the fully fenced backyard oasis complete with pergola, hot tub, and two storage sheds-perfect for relaxing or hosting gatherings. The double attached garage and driveway parking for 4 vehicles add practicality rarely found in this prime downtown location.A fantastic opportunity to own a well-appointed home on a full lot just steps from shops, dining, and Georgian Bay!

  • CA$1,099,900
  • 3 Bedrooms
  • 2 Bathrooms
  • 2,455 Sq/ft
  • 8 Parking Spots

Images

Videos

Floor Plans

3D Tour